은퇴시기가 다가오시거나 귀농귀촌 하시는분들중 농촌,어촌에서 새로운 터를 잡고 새로운 주택 건설을 고려하시는 분들이 많으실텐데요. 주택을 설계하고 시공해 건축하는게 쉬운일이 아니고 각 단계마다 비용이 들고 알아봐야할게 많다보니 왠만한 비 관련 업종 이셨던 분들은 많이 고민하셨을거 같습니다.
건축비 뿐만아니라 설계 하는 과정에서도 설계비가 많이 드니 주택을 새로 짓는걸 포기하시는 분들도 계실텐데요.
이런 불편함을 덜고자 농림축산식품부와 한국농어촌 공사에서 무료로 농가 주택 표준설계도를 제공하여 설계비 절약을 도우고 있습니다.

농가주택 표준설계도란?
농가주택 표준설계도는 농촌주택 표준설계도로 농촌 자연환경과 조화를 이루며 변화하고 있는 주거 생활을 반형한 농촌 주택 표준설계도를 개발해 농및 과 귀농등 도시민에게 주택도면을 제공해 양질의 주택을 신축할수 있게 지원하는 설계도 입니다.
연면적 40㎡에서190㎡까지 총 32종 유형을 제공하며 약 5년마다 변경된 건축법등을 반영해 매년 개발해 제공하고 있어서 표준설계도로 시공을하면 건축법위반에 대한 우려를 줄일수 있습니다.
하지만 이런 농촌주택 표준설계돌르 이용하더라도 건축사무소를 통해 대행하길 권장하고 있는데요. 건축신고시 필수서류인 신축부지에 알맞은 배치도 및 건축계획서는 건물을 지을 대지를 기준으로 관계법규에 맞게 작성되야 하기 때문입니다.
농촌주택 표준설계도 장점
- 표준설계도로 활용할 경우 건축신고로 인허가가 완화되어 일반 건축물 인허가보다 필요서류와 검토기간이 짧아집니다.
- 이미 완료된 설계도를 활용하므로 건축 설계를 할때 평면과 입면 구상에 필요한 시간이 단축가능해지고 시공업체가 대충 작성해 공사를 진행해 발생하는 시공자와의 마찰을 사전에 방지할수 있습니다.
- 국토교통부가 인정한 도면으로 에너지 효율이 높고 안전한 양질의 주택을 지을수 있습니다.

농촌 표준설계도 시공할때 공사비용은?
농촌 표준설계도 순 공사비는 6천만원대~3억 8천만원대정도로 설계되어 있습니다.
하지만 형태나 업체별 지역별 인건비 차이가 발생할수 있으며 내부 마감재료등에 따차 천차만별로 달라질수 있습니다.
정확한 건축비는 주택 건축업체에 2~3군데 견적을 의뢰해 가격을 비교해보는게 가장좋습니다.
농가주택 표준설계도 도면 다운로드
농가주택 표준설계되는 귀농귀촌종합센터 홈페이지(returnfarm.com)에서 다운받아서 활용할수 있습니다.

주택면적별로 65㎡미만, 65㎡~85㎡, 85㎡~100㎡, 100미터제곱 이상등 다양한 종류가 있습니다.
또한 유형별로 목조,컬근콘크리트,철골조,조적조등이 있어 원하는종류별로 취향별로 선택해볼수도 있습니다.

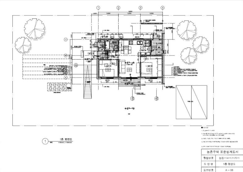
도면 하나를 클릭해보면 좀더 자세한 정보의 도면을 확인할수 있습니다.
열람용과 인허가용도 따로 제공되어서 편리합니다. 조감도도 같이 볼수있어서 완성된 집 모양이 어느정도 일지 확인도 가능합니다.

아랜 도면 평면도도 제공하고 있어 건축시공시 캐드 작업을 하지 않아도되어 편리한점도 있네요.
이렇게 하나씩 찾아보는 방법도 있으며 아래 농가주택 표준설계도를 다운받아서 활용하셔도 됩니다.
이상으로 농가주택 표준설계도에 대해 알아보았습니다.
시골 빈집매매(빈집정보센터)
귀농 귀촌을 계획 하시려는 분들이 가장 먼저 생각해야 할곳은 어디서 살것인가라는 문제일거 같습니다. 아무리 귀농귀촌이라지만 비용은 무시못할 문제인데요. 이런 귀농 귀촌을 고민하는 분
kimjeje.tistory.com
법원 경매 물건 보기
법원 경매로 올라오는 아파트나 빌라 등에 관심을 가지시는 분들이 많으실거같습니다.투자를 위해 아니면 좀더 저렴한가격에 거주할 집을 찾으려는 다양한 이유로 경매 물건을 찾게 됩니다. 법
kimjeje.tistory.com
농림공익직불금(공익직불제) 계산 방법,신청방법 총정리
작년 2020년부터 농림축산식품부에서 공익직불제를 새롭게 개편하여 시행중이었으며 작년 11월에 새롭게 개편된 공익직불금이 지급되었습니다. 이번 포스팅에서는 2021년에 시행될 농림공익직불
governa.tistory.com
'생활정보' 카테고리의 다른 글
| 시니어클럽 홈페이지(노인 일자리 구인구직) (0) | 2021.09.21 |
|---|---|
| 바둑월드 설치하기(다운로드) (0) | 2021.09.21 |
| 피망바둑 설치하기(다운로드) (0) | 2021.09.20 |
| 처방전 조회하기 (0) | 2021.09.19 |
| 강서 금호어울림 퍼스티어 분양가,평면도,청약일정 (0) | 2021.09.17 |